SAINT BLAISE : EXCLUSIVITÉ, venez découvrir cette charmante maison 4 pièces 74 m² claire et calme que nous avons nommée « Maya ».
Pour ceux qui ne connaissent pas St Blaise, c’est une commune proche de Nice Nord, via Aspremont, proche de Carros et aussi de Levens; c’est une commune très bien desservie par les routes pour récupérer rapidement l’A8, à environ 15 minutes que ce soit Nice Nord ou Nice Ouest. Elle vous offre une crèche, une école maternelle, une école primaire et un ramassage scolaire pour le collège de Tourrettes Levens.
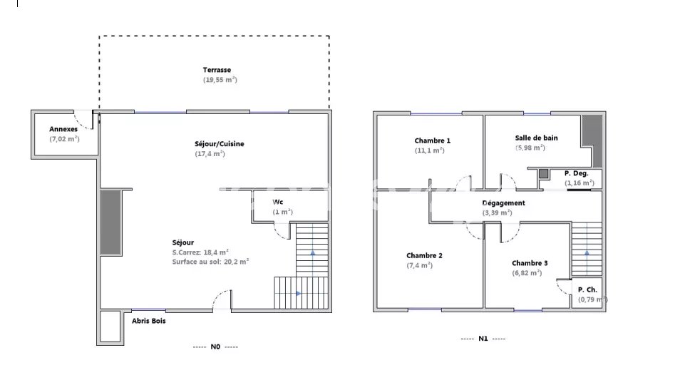
« Maya » vous offrira un cadre extérieur des plus enchanteur, avec une très jolie vue dégagée sur les collines environnantes, sans aucun bruit ni vis à vis. Avec son espace extérieur d’environ 500 m2 divisé sur plusieurs planches, vous pourrez facilement délimiter vos espaces: terrasse – BBQ / jeux d’enfants – piscine hors sol – terrain de boules / jardin – potager. Vous pourrez profiter de votre jardin pour vous, pour jardiner, pour vos enfants, pour jouer dehors, ou bien pour vos animaux de compagnie. Il y a de nombreux espaces de rangement, un grand atelier/ cellier aménagé, des cuves de récupération de pluie, un cabanon, un citronnier, poirier, figuier et une vigne de raison blanc, et le tout reste pour votre plus grand plaisir.
La maison est jumelée mais on ne sent vraiment pas les voisins quand on est à l’intérieur ou dans le jardin, la mitoyenneté est très bien faite.
La maison en elle-même n’est pas immense mais elle est très bien conçue, avec la pièce à vivre en bas et un WC indépendant également. La cuisine est moderne, bien équipée et aménagée. A l’étage vous trouverez 3 chambres dont une parentale avec un grand mur de rangement et 2 de plus petite taille pour les enfants avec placards également. Vous y trouverez aussi un vaste espace rangement dans le couloir et une salle de bains avec fenêtre.
Cette maison offre de nombreux avantages, en plus de son bel extérieur, il n’y a aucune charge, et la taxe foncière n’est que de 1012 €. Vous bénéficierez de 2 places de parking incluses avec la maison et l’usage d’une 3e place, juste devant chez vous. La maison est reliée au tout à l’égout et la fibre est en train d’arriver. Il y a la climatisation en bas ainsi qu’une superbe cheminée pour votre confort. Que dire de plus ? Une visite s’impose !
Classe énergie C – Taxe foncière 1012€.
Les informations sur les risques auxquels ce bien est exposé sont disponibles sur le site Géorisques http://georisques.gouv.fr











